アマン レジデンス東京 (428 無料写真)

x
Auteur: Masuyo

アマンレジデンス東京っぽくできますか?この一言から始まったインテリアコーディネートよく海外雑誌やホテルの内装が好きだからそのまま自分のお部屋に再現したいとおっしゃられます👏 ホテルだと天井も高いし、そもそものサイズがすべて大きいそれを日本サイズに。

好きです: 103

想像を超える暮らし! 虎ノ門麻布台とアマンレジデンス東京スムログ。

好きです: 326

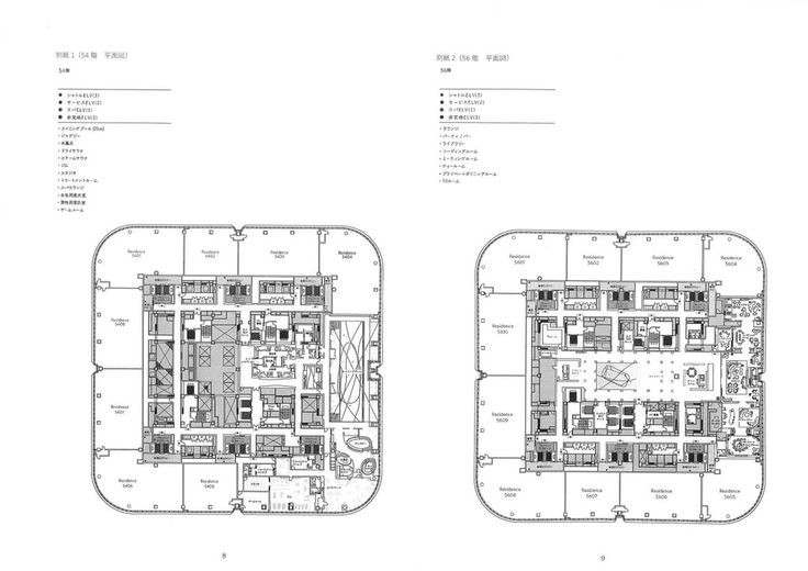
アマンレジデンス東京 308㎡ - 株式会社スターフィーSTURFEE。

好きです: 22

200億円」マンションの衝撃 高騰とまらぬ都心の不動産 23区は平均1億円超えAERA DIGITAL アエラデジタル。

好きです: 494

久しぶりに「アマン東京」Aman Tokyo – ダイアドの日常。

好きです: 168

あめくろ on X: "アマンレジデンス東京の最上階300億円の部屋、6403号室にあるテラスガーデンです。。

好きです: 401

高さ325m「虎ノ門麻布台ヒルズ メインタワー A街区 」の建設状況!最上部はアマンレジデンス東京となる高さ日本一の超高層ビル 2022.4.2~8:。

好きです: 362

高層部はアマンレジデンス 東京!高さ325.19m、262.83m、237.20m「虎ノ門麻布台ヒルズ」の建設状況!完成時には高さ日本一の超高層ビルとなります 2021.4.10: 超高層マンション・超高層ビル。

好きです: 371

アマン」がデザインする暮らし 進むホテルとの融合 - 日本経済新聞。

好きです: 348

アマンレジデンス東京東京🗼超高級マンション。

好きです: 460

あめくろ on X: "アマンレジデンス東京の57階、東京タワー側の角部屋で47億円!3LDKで308平米、管理費と修繕積立金が月に合計950,500円です。 アマンレジデンス東京内でも文句なしの一部屋ですね。https:t.co。

好きです: 397

Aman Tokyo ResidencesLuxury Apartments。

好きです: 249

アマンのラグジュアリーホテル「ジャヌ東京」麻布台ヒルズに今秋オープン LUX-BLO ラグブロ。。

好きです: 391

麻布台ヒルズに誕生した、アマンの姉妹ブランド「ジャヌ」初となるホテル「ジャヌ東京」。8つのレストラン&バーのおすすめポイントを総料理長がご紹介 │ヒトサラマガジン。

好きです: 418

最上階は300億!? 虎ノ門・麻布台プロジェクトのアマンレジデンスは誰が買う?不動産投資の健美家。

好きです: 55

高さ325.19m「虎ノ門・麻布台プロジェクト」の最上部が「アマンレジデンス 東京」に決定!アマンの姉妹ブランド「ジャヌ東京」も日本初進出! :超高層マンション・超高層ビル。

好きです: 242

Aman Tokyo ResidencesLuxury Apartments。

好きです: 96

あめくろ on X: "アマンレジデンス東京 6403号室。

好きです: 105

虎ノ門・麻布台プロジェクトってどんな街? 東京タワーの高さに住む- 東京ってどんな街。

好きです: 343

アマンレジデンス東京 308㎡ - 株式会社スターフィーSTURFEE。

好きです: 128

最上級のレストラン・プールで学ぶラグジュアリーホテルの設計アマン東京 - Daily Scenery。

好きです: 88

虎ノ門・麻布台地区第一種市街地再開発事業 メインタワー A街区54階~64階の「アマンレジデンス 東京」は、想像を絶する超高額な分譲価格になりそう!:東京・大阪。

好きです: 33

アマンの姉妹ブランドホテル「ジャヌ東京」が今秋ついに日本初上陸!marie claireマリ・クレール。

好きです: 339

アマンレジデンス東京-賃貸物件情報 東京都葛飾区 タウンハウジング f。

好きです: 364

衝撃!アマンレジデンス東京の間取りと最高300億円の価格が判明HAUTE-HOTEL オートホテル :高級ホテル専門サイト。

好きです: 149

アマンレジデンス東京の全貌とは?虎麻プロジェクトや販売価格についても解説モテ部屋A-Life エーライフ。

好きです: 416

SGR超高級マンション on X: "Rumor。

好きです: 64

久しぶりに「アマン東京」Aman Tokyo – ダイアドの日常。

好きです: 296

アマンレジデンス東京の写真・イラスト素材一覧 343件ストックフォトの Qlean。

好きです: 360

アマンレジデンス東京 – ブログ。

好きです: 353

1部屋280億円のうわさも! 超高級マンション・アマンレジデンス東京は一体誰が買う? 写真1デイリー新潮。

好きです: 426

ホテル & レジデンス麻布台ヒルズ。

好きです: 165

アマン・レジデンスは200Mらしい - 日・本・の・か・え・り・か・た。

好きです: 339

久しぶりに「アマン東京」Aman Tokyo – ダイアドの日常。

好きです: 480

アマンレジデンス東京の全貌とは?虎麻プロジェクトや販売価格についても解説モテ部屋A-Life エーライフ。

好きです: 261

想像を超える暮らし! 虎ノ門麻布台とアマンレジデンス東京スムログ。

好きです: 497

アマンレジデンス 東京」と日本初上陸ホテル「ジャヌ東京」が開業。虎ノ門・麻布台プロジェクトが推進する “ヒルズの未来系”F.M.J.magazineエフ・エム・ジェー マガジン。

好きです: 256

アマンレジデンス 東京」と新ブランドのホテル「ジャヌ東京」が2023年に誕生Discover Japanディスカバー・ジャパン。

好きです: 210

アマンレジデンス東京東京🗼超高級マンション。

好きです: 473

アマンレジデンス東京緒方渉の不動産コンサルティング奮闘記。

好きです: 14

アマンレジデンス 東京」と新ブランドのホテル「ジャヌ東京」が2023年に誕生Discover Japanディスカバー・ジャパン。

好きです: 474

世界初のアマン新ブランド「ジャヌ東京」が開業! 客室やグルメ、プールまで全貌を速報レポートELLE エル。

好きです: 476

アマンレジデンス東京東京🗼超高級マンション。

好きです: 500

1部屋280億円のうわさも! 超高級マンション・アマンレジデンス東京は一体誰が買う? 写真4デイリー新潮。

好きです: 205

麻布台ヒルズの330mタワー最上部にアマン住宅、別棟に世界初の姉妹ホテル「ジャヌ」日経クロステック xTECH。

好きです: 443

総延床面積約861,500㎡、総事業費約5,800億円の「虎ノ門・麻布台地区第一種市街地再開発事業」 「アマンレジデンス 東京」&「ジャヌ東京」が誕生!: 東京・大阪 都心上空ヘリコプター遊覧飛行。

好きです: 496

アマンレジデンス東京 Aman Residences,。

好きです: 202

アマンレジデンス東京Uncrate。

好きです: 446

Xユーザーのあめくろさん: 「アマンレジデンス東京の全共用施設です。 スパはもちろんのこと、ラウンジ、バー、ティールーム等々住戸数はわずか91戸ですが、湾岸タワマン顔負けの施設ですね。 これなら維持費に月100万弱かかっても納得かと。https:t.co。

好きです: 124

麻布台ヒルズに住む、という選択。

好きです: 30

麻布台ヒルズにアマン姉妹ブランドのホテル「ジャヌ東京」がオープン! 都内最大級のジム&スパも併設JANU TOKYO - Web。

好きです: 474

麻布台ヒルズ 森JPタワー アマンレジデンス 東京。

好きです: 357

最上階は300億円! 建設中の「アマンレジデンス東京」には誰が住む? サイバーエージェント藤田社長は「見学に行った」 写真1デイリー新潮。

好きです: 299

アマンレジデンス東京の全貌とは?虎麻プロジェクトや販売価格についても解説モテ部屋A-Life エーライフ。

好きです: 316

アマンレジデンス東京から読む〜いいものは高くても売れる時代に〜丸八不動産株式会社。

好きです: 297

アマンレジデンス 東京」と新ブランドのホテル「ジャヌ東京」が誕生。

好きです: 74

あめくろ on X: "アマンレジデンス東京 の月額900万円で賃貸に出ていた部屋のリビングルームからの眺望だけど、「高すぎる」というのもやはり考えものだよね。室内からは東京タワーが先端の部分しか見えませんhttps:t.co。

好きです: 488

ウェブサイトでの他の画像素材:

アマン レジデンス東京
住所情報: 826 林Crescent, Suite 392, 461-8930, 伊藤市, 新潟県, Japan
お電話番号: +81 90-6851-3656
企業名
Artlence